Appartement te HULSHOUT

Grote Baan 323 1/1
2235 HULSHOUT

Omschrijving

Licht en instapklaar appartement met 2 garageboxen in hartje Hulshout

Op de eerste verdieping van een kleinschalig gebouw (zonder lift) vind je dit ruime en perfect instapklare appartement,
ideaal voor wie op zoek is naar rust, licht en comfort.

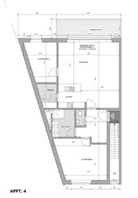
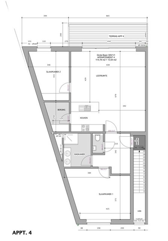
Indeling:

  • Een zeer ruime en lichtrijke leefruimte met grote raampartijen en een aangenaam uitzicht
  • Open, volledig ingerichte keuken praktisch én stijlvol
  • Grote berging aansluitend aan de keuken
  • Twee mooie slaapkamers, perfect voor een gezin, koppel of thuiswerk
  • Apart toilet
  • Ruime badkamer met alle comfort
  • Ruime inkomhal die meteen een open gevoel geeft
  • Zonnig terras ideaal voor een koffie in de ochtendzon of een glas in de avondzon

Dankzij de grote raampartijen geniet je de hele dag door van een prachtige lichtinval. Het terras biedt een rustgevend uitzicht op de groene omgeving, en ook binnen heerst een oase van rust.
Bovendien beschikt het appartement over twee afgesloten garageboxen, inbegrepen in de prijs een absolute meerwaarde!

Troeven:

  • Instapklaar
  • Zeer rustig gelegen
  • Veel natuurlijk licht
  • 2 privé garageboxen inbegrepen
  • Kleinschalig gebouw zonder lift
  • Heel gunstig EPC 30kWh/m²

Ben je op zoek naar een stijlvol, rustig én praktisch appartement in Hulshout?
Maak dan snel een afspraak voor een bezoek.
Contacteer ons via 03 247 89 16

Energie certificaat
EPC
:
30 kWh/m².jaar


Stedenbouwkundige informatie
Erfgoed
:
Nee
Comfort
Verwarming
:
Vloerverwarming
Type dak
:
Niet meegedeeld
Keuken
:
Niet meegedeeld
Lasten
Lasten huurder
:
€ 40

Algemeen

Adres
:
Grote Baan 323 1/1, 2235 HULSHOUT
Aantal slaapkamers
:
2
Aantal badkamers
:
1
Garage
:
2
Beschikbaar vanaf
:
01-11-2025
Bewoonbare opp.
:
114 m²
Opp. terras
:
13 m²
Bouwjaar
:
2019

Financiële Info

Prijs:
€ 895

Uw contactpersoon

  • Tineke Michiels
  • tm@braboimmo.be
  • 03/247.89.16
Bezoek aanvragen >

Google kaart

De kaart vergroten

Uitzicht op straat

Brabo Immo. Van mens tot mens

Vastgoed kopen om zelf in te wonen of om in te investeren, dat doe je niet elke dag.
Wij behandelen je correct en met respect en begeleiden je transparant doorheen een zorgeloos traject.

Duidelijk. Persoonlijk. Menselijk.

We zijn er voor je

Vlaamsekaai 90, 2000 Antwerpen
+32 (0)3/247.89.06
info@braboimmo.be

  

Altijd mee?

Schrijf je in op onze nieuwsbrief.